annexe.
lancieux.
Nichée dans un jardin clos de Lancieux, cette petite structure en bois explore le concept du "Ker" minimaliste : un espace compact mais généreux, pensé pour accueillir les invités et le travail créatif.
L'enjeu était d'intégrer un nouveau volume sans étouffer la maison principale. Nous avons opté pour une structure légère en ossature bois, posée délicatement sur le terrain. Le bardage en Douglas, laissé naturel, grisaillera avec le temps pour se fondre dans la palette de couleurs de la Côte d'Émeraude.
ouverture & modularité
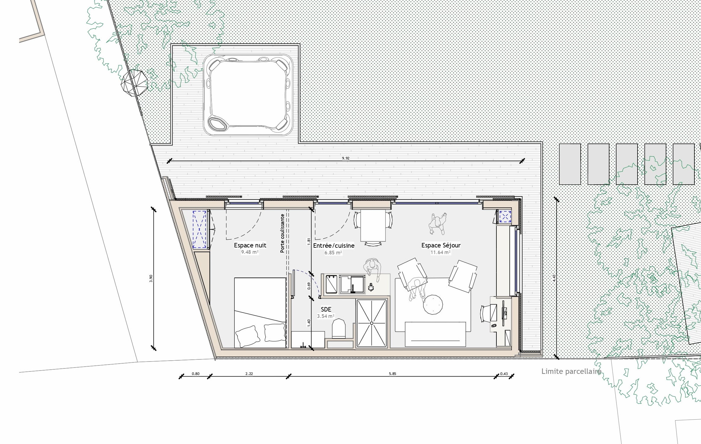
À l'intérieur, l'espace est optimisé. De grandes ouvertures cadrent des vues sur le jardin, effaçant la limite entre intérieur et extérieur. La modularité était au cœur de la réflexion : l'atelier peut se transformer en chambre d'amis en quelques instants, grâce à un travail fin sur le mobilier intégré.
Vue perspective intérieure — mise en scène de la modularité.
le projet en dessins
un projet similaire en tête ?
Qu'il s'agisse d'une rénovation complexe ou d'une annexe en bois, nous serions ravis d'en discuter avec vous.
parlez-nous de votre projet